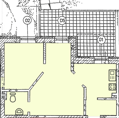
Mieszkanie
klatka
41
nr. mieszkania
2
powierzchnia
42,56 m
2
poziom
parter